Belder 25g, Roosendaal
PER DIRECT (IN OVERLEG) beschikbaar!
Deze bedrijfsruimte is gelegen op het bedrijventerrein de “Borchwerf I” in Roosendaal. Het heeft een uitstekende bereikbaarheid en directe aansluiting op de A17 en is hierdoor gunstig gelegen t.o.v. Rotterdam – Zeeland – Antwerpen - Breda.
De bedrijfsruimte is te openen d.m.v. een handbediende geïsoleerde roldeur. Aan de voorzijde van de bedrijfsruimte kunt u parkeren voor de deur.
De bedrijfsruimte is voorzien van de volgende installaties:
- Alarminstallatie
- Waterkraan aanwezig (in overleg)
- Centrale verwarming
- TL-verlichtingsbalken
METRAGE(S):
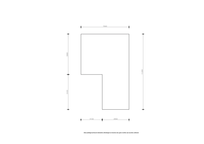
- Totale afmeting begane grond: ca. 58 m2
- Doorrijhoogte: ca. 2,40 meter
- Doorrijbreedte: ca 2,90 meter
Het object is niet conform NEN 2580 gemeten, derhalve kan geen enkel recht worden ontleend aan alle genoemde metrages.
BORCHWERF I
Op Borchwerf I zijn vele diverse bedrijven gevestigd in verschillende branches, zoals kantoren, logistiek, zakelijke dienstverlening, groothandels- en autobedrijven.
Bestemmingsomschrijving
De voor "Bedrijventerrein - 2" aangewezen gronden zijn bestemd voor:
a. industriële en ambachtelijke bedrijven voor zover deze voorkomen in categorie 3.1 en 3.2 van de Staat van Bedrijfsactiviteiten, alsmede groothandelsbedrijven;
b. ter plaatse van de aanduiding 'bedrijfswoning' tevens een bedrijfswoning;
c. ter plaatse van de aanduiding 'detailhandel in auto's' tevens detailhandel in auto's, motoren, caravans en boten;
d. ter plaatse van de aanduiding 'specifieke vorm van bedrijventerrein-detailhandel in keukens': tevens detailhandel in keukens waaronder ook begrepen badkamers en tegels;
e. ter plaatse van de aanduiding 'detailhandel perifeer' tevens perifere detailhandel;
f. ter plaatse de aanduiding 'specifieke vorm van bedrijventerrein-openbare dienstverlening in de zorgsector' tevens openbare dienstverlening in de zorgsector;
g. bijbehorende voorzieningen en voorzieningen ten behoeve van algemeen nut zoals verkeers-, groen-, water-, nuts- en daarmee vergelijkbare voorzieningen, waaronder voet- en fietspaden, ontsluitingswegen, parkeervoorzieningen, straatmeubilair, abri's, kunstobjecten, transformatorhuisjes, voorzieningen ten behoeve van afvalinzameling, bergbezinkbassins en retentievoorzieningen, alsmede een stamlijn ten behoeve van de spoorwegontsluiting van de bedrijven;
met dien verstande dat:
h. nieuwe risicovolle inrichtingen niet zijn toegestaan, tenzij de plaatsgebonden risicocontour van 10-6/jaar binnen de eigen perceelsgrens van het bedrijf ligt;
i. een bestaande risicovolle inrichting waarbij de plaatsgebonden risicocontour van 10-6/jaar zich uitstrekt buiten de perceelsgrens van het bedrijf, mag worden voortgezet of gewijzigd op voorwaarde dat de plaatsgebonden risicocontour van 10-6/jaar niet wordt vergroot of gewijzigd;
j. binnen de plaatsgebonden risicocontour van 10-6/jaar van een bedrijf geen kwetsbare of beperkt kwetsbare objecten mogen worden opgericht;
k. transport/vervoer van gevaarlijke stoffen over de stamlijn niet is toegestaan;
l. per bedrijfsvestiging het kantoorvloeroppervlak niet meer dan 50% van het totale perceelsoppervlak mag bedragen tot een maximum van 1.500 m².
Aan deze bestemmingsregels kunnen geen rechten ontleend worden.
De vermelde informatie is van algemene aard en is niet meer dan een uitnodiging om in onderhandeling te treden. Aan de inhoud van deze informatie kunnen geen rechten worden ontleend.
Meer informatie of graag een bezichtiging plannen, neem dan snel contact op met BARON!
Deze bedrijfsruimte is gelegen op het bedrijventerrein de “Borchwerf I” in Roosendaal. Het heeft een uitstekende bereikbaarheid en directe aansluiting op de A17 en is hierdoor gunstig gelegen t.o.v. Rotterdam – Zeeland – Antwerpen - Breda.
De bedrijfsruimte is te openen d.m.v. een handbediende geïsoleerde roldeur. Aan de voorzijde van de bedrijfsruimte kunt u parkeren voor de deur.
De bedrijfsruimte is voorzien van de volgende installaties:
- Alarminstallatie
- Waterkraan aanwezig (in overleg)
- Centrale verwarming
- TL-verlichtingsbalken
METRAGE(S):
- Totale afmeting begane grond: ca. 58 m2
- Doorrijhoogte: ca. 2,40 meter
- Doorrijbreedte: ca 2,90 meter
Het object is niet conform NEN 2580 gemeten, derhalve kan geen enkel recht worden ontleend aan alle genoemde metrages.
BORCHWERF I
Op Borchwerf I zijn vele diverse bedrijven gevestigd in verschillende branches, zoals kantoren, logistiek, zakelijke dienstverlening, groothandels- en autobedrijven.
Bestemmingsomschrijving
De voor "Bedrijventerrein - 2" aangewezen gronden zijn bestemd voor:
a. industriële en ambachtelijke bedrijven voor zover deze voorkomen in categorie 3.1 en 3.2 van de Staat van Bedrijfsactiviteiten, alsmede groothandelsbedrijven;
b. ter plaatse van de aanduiding 'bedrijfswoning' tevens een bedrijfswoning;
c. ter plaatse van de aanduiding 'detailhandel in auto's' tevens detailhandel in auto's, motoren, caravans en boten;
d. ter plaatse van de aanduiding 'specifieke vorm van bedrijventerrein-detailhandel in keukens': tevens detailhandel in keukens waaronder ook begrepen badkamers en tegels;
e. ter plaatse van de aanduiding 'detailhandel perifeer' tevens perifere detailhandel;
f. ter plaatse de aanduiding 'specifieke vorm van bedrijventerrein-openbare dienstverlening in de zorgsector' tevens openbare dienstverlening in de zorgsector;
g. bijbehorende voorzieningen en voorzieningen ten behoeve van algemeen nut zoals verkeers-, groen-, water-, nuts- en daarmee vergelijkbare voorzieningen, waaronder voet- en fietspaden, ontsluitingswegen, parkeervoorzieningen, straatmeubilair, abri's, kunstobjecten, transformatorhuisjes, voorzieningen ten behoeve van afvalinzameling, bergbezinkbassins en retentievoorzieningen, alsmede een stamlijn ten behoeve van de spoorwegontsluiting van de bedrijven;
met dien verstande dat:
h. nieuwe risicovolle inrichtingen niet zijn toegestaan, tenzij de plaatsgebonden risicocontour van 10-6/jaar binnen de eigen perceelsgrens van het bedrijf ligt;
i. een bestaande risicovolle inrichting waarbij de plaatsgebonden risicocontour van 10-6/jaar zich uitstrekt buiten de perceelsgrens van het bedrijf, mag worden voortgezet of gewijzigd op voorwaarde dat de plaatsgebonden risicocontour van 10-6/jaar niet wordt vergroot of gewijzigd;
j. binnen de plaatsgebonden risicocontour van 10-6/jaar van een bedrijf geen kwetsbare of beperkt kwetsbare objecten mogen worden opgericht;
k. transport/vervoer van gevaarlijke stoffen over de stamlijn niet is toegestaan;
l. per bedrijfsvestiging het kantoorvloeroppervlak niet meer dan 50% van het totale perceelsoppervlak mag bedragen tot een maximum van 1.500 m².
Aan deze bestemmingsregels kunnen geen rechten ontleend worden.
De vermelde informatie is van algemene aard en is niet meer dan een uitnodiging om in onderhandeling te treden. Aan de inhoud van deze informatie kunnen geen rechten worden ontleend.
Meer informatie of graag een bezichtiging plannen, neem dan snel contact op met BARON!
Overdracht
- Vraagprijs
- € 550 p.m.
- Status
- Verhuurd
- Aanvaarding
- In overleg
- BTW van toepassing
- Nee
Oppervlakte & inhoud
- Oppervlakte
- 58 m2
- Bedrijfshal oppervlak
- 58 m2
- Vrije hoogte
- 2,4 m
Indeling
- Voorzieningen
- Overheaddeuren, Betonvloer
Direct geïnformeerd worden wanneer iets soortgelijks op de markt komt? Laat hieronder uw gegevens achter.












